小户型大容量,60㎡老房改造后焕然一新!次卧全屋定制榻榻米!
案例信息
小户型改造的重点是什么,当然是扩容和收纳啊!不知道这一点,那房子算白改了!今天为大家推荐一套改造后的60㎡老房,装修风格选择了清新的北欧风,纯白和绿色的搭配,真的是太惊艳了!次卧全屋定制榻榻米,可当休闲区,也可当卧室,升降台一拉,下棋喝茶聊天非常惬意。
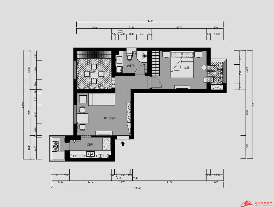
原始户型图
玄关
户型比较小,所以没有独立的玄关。右手边沿着背景墙摆放了简易鞋柜,挂衣架,还有换鞋凳,满足日常生活所需。
客厅
客厅,被背景墙上的这一抹绿吸引到了,和浅灰色形成鲜明对比增加层次感,也为空间注入了生机与活力。木质小沙发还挺有创意,搭配上布艺就显得温馨了。
纯色电视背景墙,设计了一个原木风的置物隔板,以此来代替电视柜,摆放些小绿植和装饰品,还挺美观的。旁边直通厨房,依然是比较清新的搭配。
餐厅
客餐厅设计在一起,面积虽然不大,但同时坐两三个人还是没问题的。白色餐桌铺上了北欧风的黑白桌布,绿植、鲜花点缀其中,把空间布置得很温馨。
主卧
主卧背景墙也融入了清新的浅绿,真的是很舒服的配色呢,可以让人更好地放松心情。床头柜、挂衣架,这些都是能够提高生活品质的单品,不能少!
次卧是全屋定制的榻榻米地柜,一整面顶天立地的大衣柜也非常震撼。整个卧室,可以当做休息睡眠区,也可以是和朋友聊天喝茶的好地方。中间有个升降台呢!
次卧入口的地方便是这样,门虽小,里面却是很宽敞的空间。开放式的两个小置物格,平常放放拖鞋特别实用。地毯搭配得也特别漂亮,就是要过这样精致的生活!
卫生间
卫生间,洗衣机和洗漱台设计在一块儿,让空间得到极致利用。长长的玻璃镜起到了很棒的扩容效果。台面上放些洗漱护肤用品也是极好的。
淋浴区比较小,特地用了浴帘来做隔断,地面还有防滑防腐的木垫,这样就不用担心洗澡时会滑倒了!
关注公众号
↓↓↓






